TPL RULMAN YATAKLARI (KIZAK GERDİRMELİ)
TPL Rulman Yatakları (Kızak Gerdirmeli), konveyör ve döner mil sistemlerinde hassas gerdirme ayarı gerektiren uygulamalar için geliştirilmiş özel rulman yataklama çözümleridir.
Kızak mekanizması sayesinde mil konumunun hassas bir şekilde ileri–geri ayarlanmasına olanak tanır; bu sayede hem rulman ömrü uzar hem de sistemin çalışma verimliliği artar.
Gerdirme gerektiren konveyör bantları, zincir tahrik sistemleri ve yüksek doğruluk isteyen uygulamalarda maksimum kontrol sağlar.
Teknik Özellikler
- Kızak gerdirmeli ayarlanabilir tasarım
- Rulman merkezinin hassas konumlandırılması
- Ağır yük ve vibrasyon altında yüksek stabilite
- Çelik veya döküm gövde seçenekleri
- Kolay montaj ve ayar imkânı
- Toz, kir ve nem girişine karşı dayanımlı yapı
- Düşük sürtünme – uzun rulman kullanım ömrü
Kullanım Alanları
- Konveyör bant ve zincir tahrik sistemleri
- Gerginlik ayarı gerektiren mekanik hatlar
- Endüstriyel otomasyon ve makine imalatı
- Gıda, ambalaj, dolum hatları
- Tarım ve hayvancılık makineleri
- Motor-redüktör sistemleri
- Hafif ve ağır sanayi uygulamaları
Avantajları
✔ Hassas mil gerdirme ayarı
✔ Rulman ve ekipman ömrünü uzatır
✔ Stabil, titreşimsiz ve sessiz çalışma
✔ Kolay ayarlanabilir yapı
✔ Bakım süresini ve duruşları azaltır
✔ Ağır koşullara dayanıklı gövde yapısı
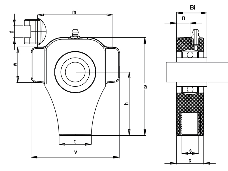
| Malzeme | Ölçüler (mm) | KG | ![]() |
Stok Kod (Metal Rulmanlı Yatak) |
KG | ![]() |
Stok Kod (Rulmansız Yatak) | Stok Kod (Paslanmaz Rulmanlı Yatak) | Yük Kapasitesi | ![]() |
||||||||||||
|---|---|---|---|---|---|---|---|---|---|---|---|---|---|---|---|---|---|---|---|---|---|---|
| Ø EJE | a | c | d | h | m | s | t | w | v | Bi | n | dyn (N) | st (N) | |||||||||
| PA | Ø 20 | 99 | 27,5 | 11,5 | 64 | 76 | M16 | 33 | 36 | 89 | 31 | 12,7 | 0.350 | + | 245 TPL 204 | 0.195 | - | 246 TPL 204 | 247 TPL 204 | 7800 | 5300 | 50 |
| PA | Ø 25 | 99 | 27,5 | 11,5 | 64 | 76 | M16 | 33 | 36 | 89 | 34 | 14,3 | 0.400 | + | 245 TPL 205 | 0.205 | - | 246 TPL 205 | 247 TPL 205 | 8600 | 6250 | 40 |
| PA | Ø 30 | 123,5 | 34,5 | 11,5 | 76 | 86,5 | M16 | 34,5 | 63 | 100 | 38,1 | 15,9 | 0.550 | + | 245 TPL 206 | 0.240 | - | 246 TPL 206 | 247 TPL 206 | 12000 | 9000 | 30 |



